首頁 > 房屋出售 > 誠昱/西港現代全新未住透天厝
第一房屋仲介 - 誠昱/西港現代全新未住透天厝

誠昱/西港現代全新未住透天厝

透天/別墅      1320萬

系統編號

物件區域
723台南市西港區

物件地址
大竹林

地坪
28.5 坪

總建坪
48.24 坪

室內坪數
48.24 坪

主建物坪
43.62 坪

附屬建物坪數
4.62 坪

車位
車庫    

總樓層
3 樓

位於樓層
1~3 樓

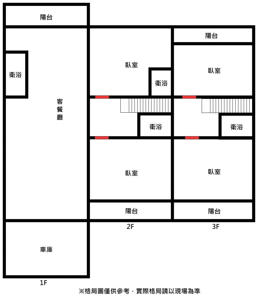
格局
4房2廳4衛4陽台

房屋座向
座西北朝東南

建物結構
鋼筋混凝土(RC)

建築完工
2025年 屋齡約1年

臨路寬度
約6 米路

特色說明
(1).環境超然.湛藍天空.交通四通八達.微風吹拂
(2).晨昏灑灑水.大地坪.室內視野佳.與大自然為伍
(3).鄉村農地.老狗.老地.老友.天南地北好住處
(4).配備完全.不積水.優雅之地.採買方便
(5)W寬約4.3米*深度21米.臨路6米

※以上資訊如有記載錯誤,一律依謄本登記簿為準

 - 誠昱/西港現代全新未住透天厝
 - 誠昱/西港現代全新未住透天厝
 - 誠昱/西港現代全新未住透天厝
 - 誠昱/西港現代全新未住透天厝
 - 誠昱/西港現代全新未住透天厝
 - 誠昱/西港現代全新未住透天厝
 - 誠昱/西港現代全新未住透天厝
 - 誠昱/西港現代全新未住透天厝
 - 誠昱/西港現代全新未住透天厝
 - 誠昱/西港現代全新未住透天厝
 - 誠昱/西港現代全新未住透天厝
 - 誠昱/西港現代全新未住透天厝
 - 誠昱/西港現代全新未住透天厝
 - 誠昱/西港現代全新未住透天厝
推薦物件...

誠昱/台南公園芳鄰稀有華.

誠昱/台南公園芳鄰稀有華.
668 萬

誠昱/善化近南科西衛雅緻.

誠昱/善化近南科西衛雅緻.
838 萬

誠昱/彰化花壇長昇透天

誠昱/彰化花壇長昇透天
698 萬

誠昱/佳里輕齡3代宅電梯.

誠昱/佳里輕齡3代宅電梯.
2980 萬

誠昱/東區崇德香榭雅居電.

誠昱/東區崇德香榭雅居電.
800 萬

誠昱/下營有電2分柚子園

誠昱/下營有電2分柚子園
588 萬

誠昱/有超大資材室農地1.

誠昱/有超大資材室農地1.
3538 萬

誠昱/近昭明國中全新併排.

誠昱/近昭明國中全新併排.
1490 萬


更多..
地圖
分享到臉書